Dit fraaie geheel van een zéér ruim woonhuis, met het dak dat doorloopt over de bijkeuken en de garage/berging, een royale houten schuur met loungeachtige overkapping en de vele privacy in de achtertuin, is gebouwd in 2008 op een kavel van maar liefst 408 m² eigen grond.
Gelegen aan een doodlopend en autoluw stukje straat en aan de achterzijde grenzend aan een brede bos-/groenstrook, waardoor je in je achtertuin heel veel privacy hebt.
Op elke verdieping zie je de royale opzet van deze helft van een dubbel woonhuis terug, met op de begane grond een brede en diepe woonkamer met erker, die naadloos overloopt naar een leef-/woonkeuken met openslaande deuren naar de achtertuin en een groot aanrecht in modulaire opstelling, voorzien van alle gewenste inbouwapparatuur.
Elke slaapkamer is meer dan riant te noemen (de ouderslaapkamer is absoluut van de buitencategorie) en de multifunctionele leefruimte boven de garage/berging is zo ruim dat je daar bijvoorbeeld als kind een prachtig mooie slaap-/zit-/speelkamer kunt hebben.
Op de zolderverdieping kan, indien gewenst, nog een zeer ruime slaapkamer worden gerealiseerd, waardoor het totaal op maar liefst vijf slaapkamers zou komen.
De praktische bijkeuken, de garage/berging voorzien van houten openslaande deuren en de sfeervolle overkapping achter in de tuin maken het tot een zeer compleet geheel.
Maak een afspraak en ervaar zelf wat deze woning u allemaal te bieden heeft.
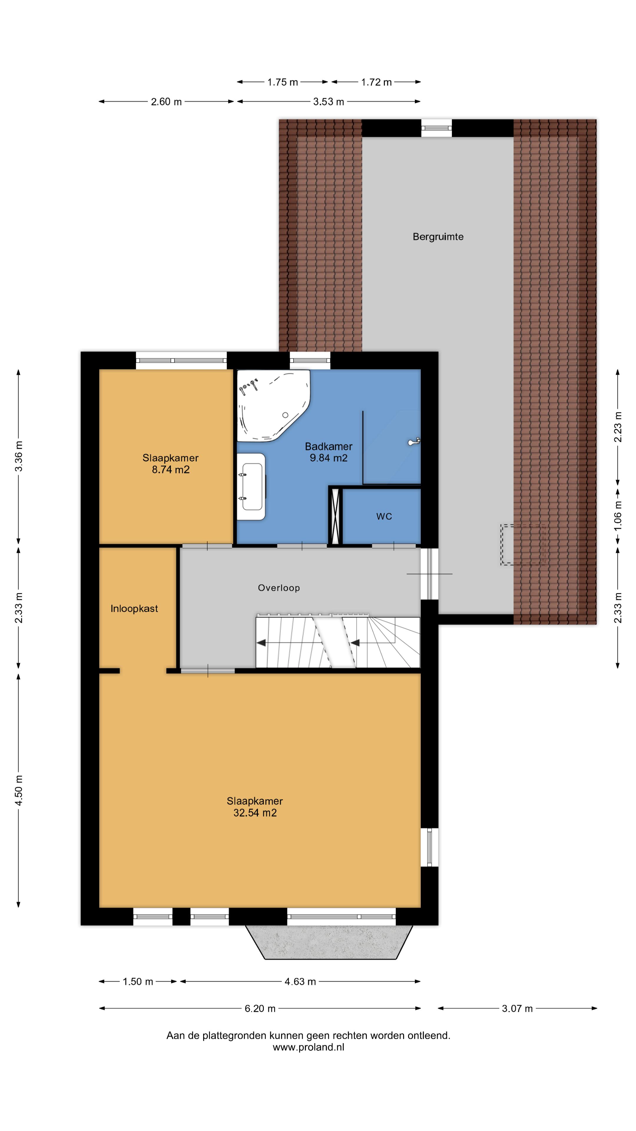
De indeling is als volgt:
Begane grond: ruime entree/hal, trapopgang, garderobe, toilet, riante straatgerichte woonkamer met erker en houtkachel en belegd met fraaie vloertegels met daaronder vloerverwarming, leefkeuken met openslaande deuren naar achtertuin/terras, keukenruimte met aanrecht in modulaire opstelling voorzien van vaatwasser, 5-pits inductiekookplaat met afzuigkap, oven, koelkast en magnetron, toegang naar bijkeuken en garage/berging met houten openslaande deuren.
1e verdieping: royale overloop met separaat toilet, 3 mooie slaapkamers, royale en luxe badkamer voorzien van 2-persoons jacuzzi, inloopdouche, dubbele wastafels en natuurstenen vloer.
2e verdieping: grote open ruimte met opstelling c.v. combiketel (Remeha), 4e ruime slaapkamer en mogelijkheid nog extra kamer(s) te realiseren.
Tuin: De achtertuin is breed en diep en heeft een gezellige buitenruimte met overkapping, een ruime houten schuur/berging en een in de grond verzonken grootformaat trampoline.
Papiermolen 29, 8311 BE Espel, Netherlands